Customerised China Made Mingdao Crane Brand Light Duty Lift 3t 5t 10ton 15ton Gantry Crane Price

Customization: Available
Warranty: 2 Years
Certification: RoHS, CE, ISO9001

Product Description

Basic Specifications
Model NO.MH
ConditionNew
Maximum Lifting Weighton Request
Maximum Lifting Heighton Request
Operation FormPendent Button / Remote Control
TypeCommon Gantry Crane
Main Girder FormSingle Girder
Product NameSingle Girder Gantry Crane
Power Source220V/380V/415V or on Request
ColorIndustrial Yellow/Red or on Request
Girder TypeBox Type / Truss Type
Moving TypeRail Mounted
ApplicationIndoor and Outdoor Workplaces
Electric PartsSiemens Delixi Chnt
Work DutyA3-A5
HS Code8426193000
Product Description

Light Duty Lift 3t 5t 10ton 15ton Gantry Crane

Gantry Crane

MH single girder gantry crane is the most commonly used light duty crane, widely applied for indoor and outdoor workplaces, such as storage yards, warehouse, workshop, freight yards, and dock. It is a typical A frame gantry crane and the lifting capacity of this equipment is in a range of 3 ton to 16 ton to handle small and medium sized materials.

The metal structure of this lightweight gantry crane is usually designed with box type. For outdoor working environments with strong wind, truss gantry crane is more often used to reduce wind resistance. This light duty gantry crane is ideal for lifting and transferring small and lightweight loads to boost productivity.

Main Parameters List
Main Parameters List
Crane Traveling MechanismTraveling Speed(m/min)20
MotorTypeCone Squirrel-cage
Power(kw)ZDY21-4/0.8X2
Hoist MechanismElectric Hoist ModelCD1,MD1,HC
Lifting Speed(m/min)8 0.8/8
Span(m)12-30
Lifting Capacity(t)3-32Ton
Lifting Height(m)6, 9
Traveling Speed(m/min)20
MotorCone Squirrel-cage
Work DutyIntermediate Jc=25%
Power Supply380V 50Hz 3P
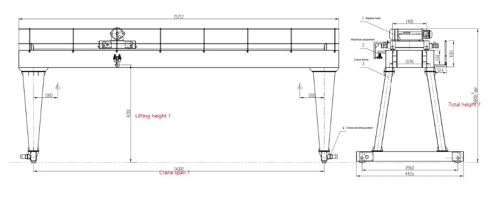
Crane Dimensions
Construction & Features

It is composed of beam, support legs, crane travelling mechanism, trolley, and electric equipment.

It features both box type and trussed type:

  • Box Type: Slim body and strong lifting capacity.
  • Trussed Type: Small windward surface, light self-weight, and strong resistance for windy environments.
Crane Details

Free spare parts:

Spare Parts

Control method: Pendent button control / radio remote control

Safety Devices for MH Gantry Crane

To guarantee normal operation and avoid mechanical damage, we provide comprehensive safety equipment:

  • Overload Limit Switch
  • Rubber Buffers
  • Electric Protective Devices
  • Emergency Stop System
  • Voltage Lower Protection
  • Current Overload Protection
  • Rail Anchoring
  • Lifting Height Limit Device
Customer Feedback & Factory
Customer Feedback Factory Visit
Packing & Delivery
Packing
Loading 1 Loading 2 Final Loading
FAQ
Can the cranes be customized?
Yes, every customer's working condition is different. All of our products can be customized based on specific requirements to suit your demands.
How many operation methods are available for selection?
We provide pendent controller with push button control, remote control type, or cabin control type depending on your needs.
Is it possible to install a crane in a workshop with low headroom?
Yes, we have special products designed for low headroom workshops. Our engineers can provide the best design according to your dimensions.
Do you supply lifting tools?
Yes, we can provide any kind of lifting tools such as hooks, electromagnetic spreaders, grab buckets, and more.
What information is needed for a design solution?
To offer the most suitable design, please provide: 1. Lifting capacity, 2. Span length, 3. Lifting height, 4. Rail requirements, 5. Power supply voltage, and 6. Working environment/material type.

Related Products